Your basket Value
0,00 zł

Categories

Close
Recently viewed
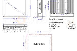
» 15.6" / 1400x900 / Dotyk: Capacitive
» Intel Celeron 1037U (2x 1.8GHz) / 1x VGA
» 1x RJ-45 LAN / 4x USB 2.0 / 1x COM(RS232)
» 1x HDMI / 1x Audio / IP65 (front panel)
» Wi-Fi / 4GB RAM / 64GB SSD
Remove recently viewed